h4tlogonew.gif (13634 bytes)
Augustus Suglia, A.I.A.
382 Church Avenue
Cedarhurst, L. I., N. Y. 11516
516-569-4241 or
e-mail us

 


Farmhouse Plans

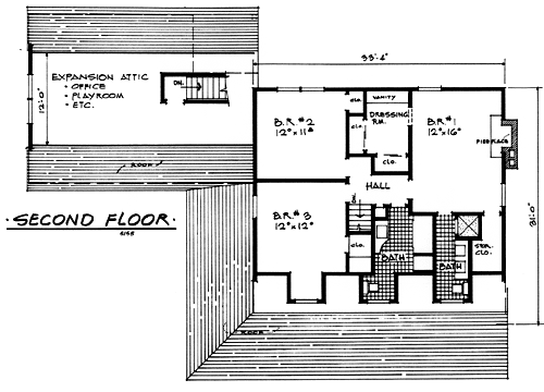
House Plan # 5155 - Square Footage- 1,145 1st Floor, 849 2nd Floor
Total 1,994 square footage

5155r-500.gif (42246 bytes)

House Plan # 5155 -This updated country home includes a two-car garage and enough space for a modern lifestyle.

5155-1fb.gif (32264 bytes)
5155-2f.gif (38496 bytes)

House Design # 5155 has a living room, dining room, family room, kitchen, three bedrooms, two baths and a foyer, totaling 1,994 square feet of habitable area. There is a two-car garage, which has an expansion area above it, a laundry room, lavatory and mudroom. The overall dimensions are 63 feet by 31 feet. The house as shown includes a full basement.


Price List Order Form Meet the Architect F.A.Q. Contacting US

 

 

previous.gif (719 bytes)
Previous Page Main Page


For questions, suggestions, or comments please contact the webmaster

Copyright ŠAugustus Suglia 1997-2003